👍 Unlocking Power: 5 Key Insights from the 2004 Dodge Stratus Fuse Diagram

Explore the intricacies of your vehicle's electrical system with our detailed guide on the 2004 Dodge Stratus Fuse Diagram. Uncover essential insights for optimal automotive performance.

In the intricate landscape of automotive electrical systems, understanding the 2004 Dodge Stratus Fuse Diagram is paramount for both seasoned mechanics and car owners alike. This comprehensive exploration delves into the meticulous world of wiring diagrams and schematics, offering a detailed dissection of the Stratus' electrical architecture. As we navigate through this technical terrain, we aim to shed light on the critical components, intricate connections, and the overall blueprint that governs the electrical functionalities of the 2004 Dodge Stratus. Join us in unraveling the intricacies of this fuse diagram, bridging the gap between complexity and comprehension for a more informed automotive experience.

Unlocking Power: 5 Key Insights from the 2004 Dodge Stratus Fuse Diagram

Understanding the Essence of Wiring Diagrams

Embark on a journey into the intricacies of automotive electrical systems with a detailed exploration of 2004 Dodge Stratus Fuse Diagram. Wiring diagrams serve as the blueprint, decoding the complex network of connections that power a vehicle's various components. The visual representation, as shown below, aids in comprehending the interplay between different elements in the system.

Wiring Diagram

Decoding Schematics for a Holistic View

Complementing wiring diagrams, schematics provide a holistic view of the electrical layout, emphasizing how each part contributes to the overall functionality. Dive into the intricate details of the schematic representation specific to the 2004 Dodge Stratus, as depicted in the visual guide below.

Schematic Representation

The Significance of Color Codes

Color codes within wiring diagrams are akin to a universal language in deciphering electrical connectivity. Each hue signifies a specific function or component, fostering clarity for technicians and enthusiasts alike. The image below exemplifies the importance of color coding in the context of the 2004 Dodge Stratus.

Color Codes

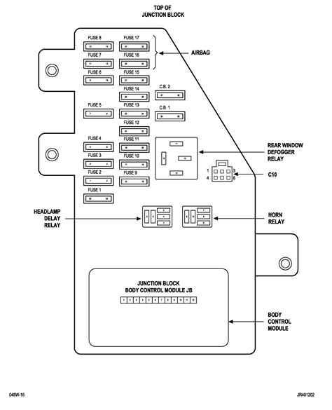
Identifying Fuse Boxes and Components

Fuse boxes act as nerve centers within a vehicle's electrical system. Understanding their location and the components they safeguard is crucial for troubleshooting. Refer to the visual aid below for a clear depiction of the 2004 Dodge Stratus fuse box and its components.

Fuse Boxes and Components

Diagnostic Tools for Effective Troubleshooting

Equip yourself with the knowledge of diagnostic tools for efficient troubleshooting. Familiarize yourself with instruments such as multimeters and circuit testers, crucial in deciphering potential issues within the 2004 Dodge Stratus electrical system.

Diagnostic Tools

Common Issues and Solutions

Explore common electrical issues encountered in the 2004 Dodge Stratus and discover effective solutions. From blown fuses to short circuits, the troubleshooting guide below offers practical insights for swift problem resolution.

Common Electrical Issues

Preventive Maintenance Tips

Implementing preventive maintenance measures is key to ensuring the longevity of your vehicle's electrical system. Uncover expert tips and strategies to safeguard the 2004 Dodge Stratus against potential issues, as illustrated below.

Preventive Maintenance Tips

Conclusion: Empowering Your Automotive Understanding

Armed with a comprehensive understanding of the 2004 Dodge Stratus Fuse Diagram, you are now equipped to navigate the intricate realm of automotive wiring and schematics. Empower yourself with knowledge, and embark on a journey of informed vehicle ownership.

Conclusion:

As we conclude our journey through the intricate realms of the 2004 Dodge Stratus Fuse Diagram, we sincerely hope this comprehensive exploration has empowered you with a deeper understanding of your vehicle's electrical architecture. From dissecting the intricacies of wiring diagrams to unraveling the blueprint of schematics, our aim has been to bridge the gap between complexity and comprehension. Feel free to revisit these insightful resources whenever the need arises, ensuring that you can navigate the electrical landscape of your Dodge Stratus with confidence and precision.For further inquiries or if you seek more detailed information on specific aspects of the fuse diagram, don't hesitate to explore our archives for related articles. Our commitment to providing valuable insights into automotive intricacies remains unwavering. Stay tuned for future updates as we continue to decode the technical nuances that shape the driving experience of Dodge Stratus enthusiasts. Thank you for entrusting us with your quest for knowledge, and we look forward to being your go-to resource for all things related to automotive wiring diagrams and schematics.

Keyword:2004 Dodge Stratus Fuse Diagram

Related Keywords:Fuse Diagram, Wiring Diagrams, Automotive Exploration, Electrical Architecture, Schematic Insights, Technical Nuances, Dodge Stratus


0 komentar